|
Obecny czas: 13 Sty 2026, 05:52
|
Zobacz posty bez odpowiedzi | Zobacz aktywne tematy
|
Strona 1 z 1
|
[ 3 posty(ów) ] |
|
| Autor |
Wiadomość |
|
ryla |
#831627 Wysłany:
02 Gru 2017, 23:49; Temat postu: Punto Grande Brak napięcia 12V na pinie "7" |
|
 |
| Forumowicz |
Imię: Ryszard
Samochód: Grande Punto 3d
Silnik: 1.3 75KM mJTD
Paliwo: ON
Wersja: Active
Województwo: lubelskie [L]
Rejestracja: 02 Gru 2017, Posty: 1
|
|
Witam W czasie jazdy zgasło radio. Po jego wyjęciu okazało się, że nie ma napięcia w kostce ISO A na pinie "7". Nie mając schematu elektr. nie umiem znaleźć jak biegnie ten przewód - skąd dochodzi tu napięcie po przekręceniu kluczyka Na pinie "4" jest. Czy ktoś może mi pomóc? Pozdrawiam. Rysiek
|
|
| Góra |
|
 |
|
|
|
cedec1 |
#831629 Wysłany:
02 Gru 2017, 23:52; Temat postu: Re: Punto Grande Brak napięcia 12V na pinie "7" |
|
 |
| Klubowicz |
 |
Imię: Krzysztof
Samochód: Grande Punto 3d
Silnik: 1.4 8V 77KM
Paliwo: Benzyna
Wersja: Emotion
Województwo: małopolskie [K]
Miejscowość: Nowy Targ Rejestracja: 02 Lis 2011, Posty: 2265 Pomógł: 51
|
|
wyjmij skrzynkę bezpieczników pod maską i sprawdź czy pod nią nie jest zielono od śniedzi
_________________ topic57539.html <---- moje Grande Punto z rzeszy
|
|
| Góra |
|
 |
|
abel |
#831686 Wysłany:
04 Gru 2017, 12:58; Temat postu: Re: Punto Grande Brak napięcia 12V na pinie "7" |
|
 |
| Puntoświr |
Samochód: Inny Fiat
Silnik: Inny
Paliwo: Benzyna
Wersja: Emotion
Województwo: warmińsko-mazurskie [N]
Miejscowość: ełk Rejestracja: 12 Cze 2007, Posty: 574 Pomógł: 18
|
|
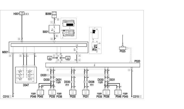
bezpiecznik f51 w body compie do sprawdzenia
| Załączniki: |
radio gpunto.png [ 25.91 KiB | Obejrzany 1303 razy ]
|
|
|
| Góra |
|
 |
|
Strona 1 z 1
|
[ 3 posty(ów) ] |
|
|
Nie możesz zakładać nowych tematów na tym forum Nie możesz odpowiadać w tematach na tym forum Nie możesz edytować swoich postów na tym forum Nie możesz usuwać swoich postów na tym forum Nie możesz dodawać załączników na tym forum
|
|